
We signed a lease on an apartment and we could not be more excited!! The apartment is in an old warehouse building which our new landlords purchased and renovated 15 years ago. The current tenant is a business which outgrew their current space and will now be moving into a larger unit in the same building. Since the space was outfitted for an office, we met with the landlord this week to share plans and ideas over how we could turn it into a residential 2 bedroom unit!
Here is the existing..

There are no closets in here at all and the wall where we’d like to put our bedroom is completely open to the rest of the apartment. I asked if I could be involved in the planning of the walls and the landlords agreed! I got to work creating a model with Google Sketchup and thought of a few ideas for closet and wall arrangements. Without having the dimensions of the rooms, I planned as much as possible before the meeting. We met Tuesday first thing in the morning and started discussing plans.
Here is what I thought we would do..

I thought we would be able to first put a wall across the hallway to enclose the bedroom. Then I would borrow some space from the bedroom to make a walk-in closet. On the end of the bedroom’s closet, we could put another closet for coats. The second bedroom would have two large closets stretching the entire length of the wall.
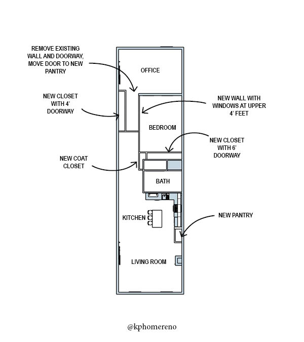
When I got there, I found out we weren’t able to build a walk in closet because anything beyond 4′ would need its own sprinkler. womp womp. So then we agreed on a 24″ depth closet and a smaller coat closet on the end.
The closet in the office area couldn’t go where I wanted it because it would occupy the only empty wall. Two walls have windows/doors and the third wall has a unique historic barn door on it. In the future if this were to become a bedroom, a closet there would mess up where a bed might go.
Here is the layout we settled on..

We ended up creating a little hallway going into the office space and adding a closet on the left side as you walk in. The hall is still about 4′ wide, so it’s plenty roomy. They’re planning to leave the top of the walls open and then install windows at the bedroom walls to allow natural light into the unit.
I put a model together using Sketchup primarily to help me visualize where I would like the closets to go, but after building it I couldn’t stop playing. I scoured the built-in components library and found tons and tons of really cool pieces of furniture. Did you know you can just download entire rooms?? I found a kitchen pretty similar to the one in the apartment and then just customized it. I’d love to share the 3d view once I get the furniture details more ironed out.

The other planning task I’ve taken on is creating some mood boards!! I impulsively bought this rug from the Memorial Day sales. Before I kept going purchasing furniture and statement pieces for the apartment, Michael asked to be involved in the furnishing process this time around (since I picked out a lot of stuff for our current house).
So, to get some of his feedback and gauge what kind of vibe we were going for, I created three different mood boards. I like a mid-century modern with a little boho mixed in, while he really wanted to lean into the industrial loft aesthetic intrinsic to the building.
I started with something I personally am drawn to.. light neutral colors, delicate furniture, and a balance of mid century style with bohemian touches. Once I was happy with that one, I moved on to a second and tried to make something completely different. Some pieces remained the same, like our brown leather couch from article, but some easily were swapped out like the two arm chairs or shelving units.
Here is the first one

The second one mixed in more colors, added some edgier and darker pieces and tried to bring in a more masculine feel.
Here is the second one

The last one was what I was imagining Michael wanted. He mentioned masculine, Harley Davidson, industrial, and ‘dope’. I tried putting my personal preferences aside and remember some pieces he showed me and liked. The rug was one we have both liked since seeing it on West Elm’s black Friday sale a couple years ago. Not sure why we didn’t pull the trigger on buying it, but we’ve been thinking about it ever since.
All the images he showed me have dark furniture, leather, and give off an old library/cigar bar feel. So I incorporated furniture with metal legs, industrial pipe wall shelf, darker decor, and navy blue curtains to tie into the rug.

We still have so much work to do to get our house packed up and ready for the move, but it’s such a relief to have one less thing to worry about! We completely trust the landlords and are so grateful they are letting us have some say in the build out for the unit. Going from a 1400 square foot house with plenty of storage to one open apartment definitely had us wondering where we would hide all our stuff. Throughout the move, I have been purging unnecessary items, but things like seasonal clothes and decor still need a place to go. This week we can focus on packing our house and worry less about what our apartment will actually look like come June 1st.
Let me know in the comments what your favorite style mood board is!






